BARBERÍA AVELINO’S

Acondicionamento de local para barbería
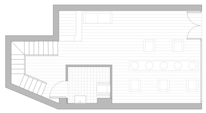
Concebido coma un espazo para o cuidado masculino, nace a barbería Avelino’s no corazón de Teis.
Partimos dun antigo local adicado a venta de móbiles, que deberiamos adecuar a nova actividade para obter a correspondente licenza.
Debiamos facer unha obra mínima, xa que apremiaba abrir o local. Para isto, ampliouse o aseo para facelo accesible, demoleuse o tabique traseiro que reducía a sensación de amplitude e levaronse a cabo as instalacións necesarias de renovación de aire e fontanería para os lava cabezas.




Ficha técnica:
Avelino’s barbershop
Ano: 2021
Ubicación: Rúa Pedro Alvarado, 5. Teis (Vigo)
Arquitecta: Nuria Balboa Rodríguez
Constructora: por administración