EMPRESA TEXTIL

Ampliación de local para empresa textil
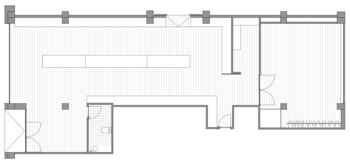
Debido a necesidades de ampliación de espazo para desenrolar a actividade da empresa, anéxase un local o xa existente.
Partimos dun local completamente lóbrego, no que era imprescindible unha boa optimización do espazo e clasificación, para a xestión loxística das operacións de saída e entrada de mostras textis. Así, para o seu deseño tómase en conta como prioritaria a funcionalidade e confort térmico e lumínico, xa que era unha cuestión imprescindible para os seus propietarios.
O local divídese nunha zona de almacenaxe, mesa de clasificación, xestión de mostras e set fotográfico. Este último pódese usar tanto con luz natural coma artificial, dependendo das necesidades do fotógrafo.




Ficha técnica:
Empresa textil
Ano: 2019
Ubicación: Ames
Arquitecta: Nuria Balboa Rodríguez
Constructora: MODIPU